The Standard Pod is a luxury outdoor BBQ station designed for exterior use, combining high-end finishes with functionality and modern design. Built to elevate your outdoor gatherings, it includes:
• Premium outdoor finishes
• Integrated exterior sound system (outdoor speakers)
• Stainless steel range hood
• 42” TV ready for entertainment
• Sink with water tank and drainage system
• Glassware shelf for wine and cocktail glasses
• Glass-door mini fridge
• 1 cooking unit of your choice: hybrid grill, charcoal grill, Green Egg, or preferred option
The Standard Pod is a luxury outdoor BBQ station designed for exterior use, combining high-end finishes with functionality and modern design. Built to elevate your outdoor gatherings, it includes:
• Premium outdoor finishes
• Integrated exterior sound system (outdoor speakers)
• Stainless steel range hood
• 42” TV ready for entertainment
• Sink with water tank and drainage system
• Glassware shelf for wine and cocktail glasses
• Glass-door mini fridge
• 1 cooking unit of your choice: hybrid grill, charcoal grill, Green Egg, or preferred option
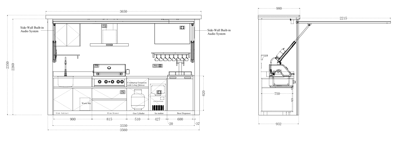
| Configuration Name | Specification | Remarks |
|---|---|---|
| BBQ Pod Outer Dimensions | L3650mm × W980mm × H2350mm | |
| Door Opening Angle | 90° | |
| Total Open Dimensions | L3650mm × W3100mm × H2350mm |
| Configuration Name | Specification | Remarks |
|---|---|---|
| Distribution Box | Rear-right side | |
| BBQ Pod Door | Electric Control | Remote Control |
| Material | Stainless Steel | |
| Stainless Steel Sink | AF-4541 | |
| Faucet | AF-C03 Stainless Steel Pull-Out Faucet | |
| Drawer | Imported Blum | |
| Electric Lift Spice Cabinet | Electric Control | |
| Door Panel RGB Light Strip | 24V Adjustable RBG Lightning | Remote Control |
| Lighting Function | C0B 24V waterproof lighting (Including Two Inner Top Light Strip, Light Strip on the Outer Side of Main Side Panels, and Toe Kick Light Strip) |
| Configuration Name | Specification | Remarks |
|---|---|---|
| Exterior Color | Customisable | |
| Cabinets Color | Door Panel Color customizable | |
| Interior Worktop Material | Stainless Steel / Sintered Stone | |
| Wine Glass Holder | Optional | |
| Wall-mounted Storage Shelf | Customisable levels |
If you have any questions, need more information, or are ready to start designing your custom food trailer, don't hesitate to get in touch with us.

Premium modular outdoor stations with spacious cooking areas, intelligent storage, customizable lighting, and optional lifestyle features designed for a fully elevated outdoor experience.

Compact outdoor stations designed for efficient use of space, combining essential cooking features, smart storage, and customizable lighting in a sleek, minimal footprint.
If you have any questions, need more information, or are ready to start designing your custom food trailer, don't hesitate to get in touch with us.
info@ntxfoodtrailers.com
(469) 212-6626
(210) 618-5310